
Диапазон размеров: DN50 до DN350
Диапазон давления: Класс 150
Тип присоединения: Фланцевое
Материал: Кованая сталь (ASTM A105, A350 LF2, A182 F316)
Уплотнение: Металл по металлу
Конструкция клапана: Y-образная схема с болтовым кожухом
Длина по установке: Соответствует стандарту ASME B16.10
Испытания и контроль: В соответствии с API 598
Стандарты производства: ASME B16.34, BS1873
Шламовый клапан типа Y — это прочный и износостойкий клапан, специально разработанный для работы с абразивными, вязкими и содержащими твердые частицы средами. Благодаря корпусу с угловым Y-образным каналом обеспечивается более плавный поток с минимальным сопротивлением и риском засорения — это делает клапан идеальным решением для шламовых систем в тяжелых промышленных условиях. Он спроектирован в соответствии со стандартом ASME B16.34, имеет конструкцию с уменьшенным проходом, а расстояние между фланцами (face-to-face) может быть адаптировано под требования заказчика. Типичные материалы включают ASTM A216 WCB, ASTM A105-HF и нержавеющую сталь с износо- и коррозионностойкой арматурой.
Данный клапан обычно выпускается в исполнениях с ручным (маховиковым), редукторным или электрическим приводом и рассчитан на давление от Class 150 до Class 600. Конструкция уплотнения и сменные седло/затвор обеспечивают надежную работу и простоту обслуживания.
Левая и правая половины корпуса выполнены раздельно, седло клапана расположено между двумя половинами. Ослабив болты, соединяющие две части корпуса, седло можно демонтировать и заменить. Полость клапана оснащена износо- и коррозионностойким защитным слоем. При открытии клапана седло экранируется, что минимизирует эрозию. Корпус проходит обработку методом химического никелирования (N.P.), обеспечивая твёрдость HRC60–62 и высокую износо- и коррозионную стойкость.
Седло клапана и уплотнительная поверхность наплавлены сплавом стеллит или карбидом вольфрама, что обеспечивает долговечную линию герметизации и снижает повреждение поверхности. Конструкция включает противовращательные элементы, предотвращающие вращение штока и допускающие только поступательное перемещение при открытии и закрытии. Это увеличивает срок службы и сохраняет герметичность.
Типы приводов: ручной, редукторный, электрический, пневматический.


| № | Наименование узла | Материал |
|---|---|---|
| 1 | Левая часть корпуса | ASTM A216 WCB |
| 2 | Болт корпуса | ASTM A193 B7 |
| 3 | Гайка корпуса | ASTM A194 2H |
| 4 | Прокладка | Графит + нержавеющая сталь |
| 5 | Седло | ASTM A105+HF |
| 6 | Диск | ASTM A105+HF |
| 7 | Шток | ASTM A182 F6a |
| 8 | Разъёмное кольцо (двухсоставное) | ASTM A182 F6a |
| 9 | Гайка штока диска | ASTM A105 |
| 10 | Правый болт | ASTM A216 WCB + легированная сталь |
| 11 | Набивка | Графит |
| 12 | Болт крышки | ASTM A193 B7 |
| 13 | Гайка крышки | ASTM A194 2H |
| 14 | Нажимная втулка набивки | ASTM A182 F6a |
| 15 | Фланец набивки | ASTM A216 WCB |
| 16 | Стяжной болт набивки (с проушиной) | ASTM A193 B7 |
| 17 | Гайка стяжного болта | ASTM A194 2H |
| 18 | Кронштейн (yoke) | ASTM A216 WCB |
| 19 | Гайка втулки кронштейна | Медный сплав |
| 20 | Маховик | Высокопрочный чугун |

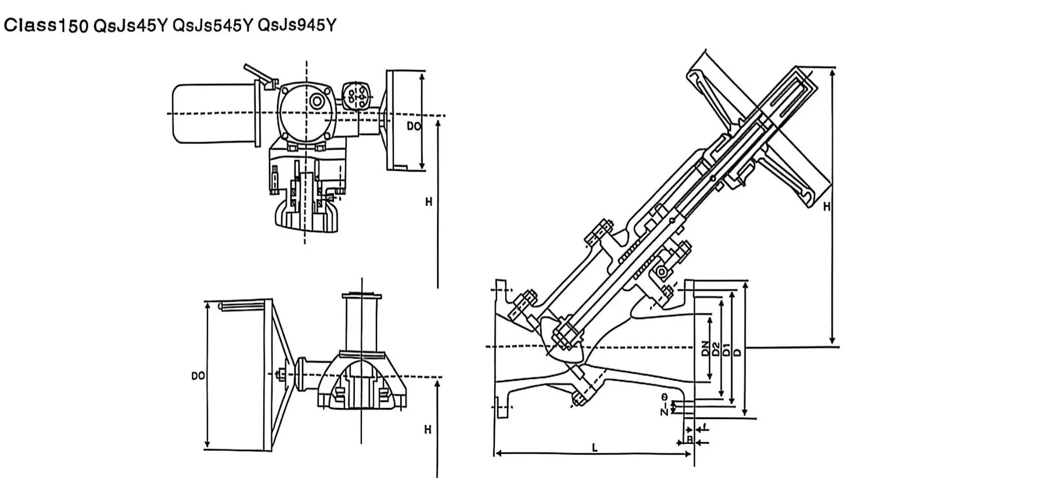
| Размер DN (мм) | NPS (дюймы) | Тип привода | L | D | D1 | D2 | B | Z–Φ | f | Do | H | Приводное устройство |
|---|---|---|---|---|---|---|---|---|---|---|---|---|
| 50 | 2 | Ручной привод | 230 | 150 | 120.5 | 92 | 16 | 4–20 | 2 | 250 | 307 | – |
| 80 | 3 | Ручной привод | 310 | 190 | 152.5 | 127 | 19.58 | 4–20 | 2 | 250 | 386 | – |
| 100 | 4 | Ручной привод | 350 | 230 | 190.5 | 157.5 | 24 | 8–20 | 2 | 250 | 448 | – |
| 125 | 5 | Ручной привод | 400 | 255 | 216 | 186 | 24 | 8–22 | 2 | 320 | 519 | – |
| 150 | 6 | Ручной привод | 480 | 280 | 241.5 | 216 | 25.5 | 8–22 | 2 | 360 | 600 | – |
| 200 | 8 | Редукторный привод | 600 | 345 | 298.5 | 270 | 29 | 8–22 | 2 | 450 | 795 | BA–1 |
| 250 | 10 | Редукторный привод | 730 | 405 | 362 | 324 | 30.5 | 12–26 | 2 | 600 | 880 | BA–1 |
| 300 | 12 | Редукторный привод | 850 | 485 | 432 | 318 | 32 | 12–26 | 2 | 600 | 935 | BA–1 |
| 350 | 14 | Редукторный привод | 980 | 535 | 476 | 413 | 35 | 12–30 | 2 | 600 | 1088 | BA–2 |
| 200 | 8 | Электропривод | 600 | 345 | 298.5 | 270 | 29 | 8–22 | 2 | 305 | 995 | SMC–00 |
| 250 | 10 | Электропривод | 730 | 405 | 362 | 324 | 30.5 | 12–26 | 2 | 305 | 1045 | SMC–00 |
| 300 | 12 | Электропривод | 850 | 485 | 432 | 381 | 32 | 12–26 | 2 | 305 | 1105 | SMC–00 |
| 350 | 14 | Электропривод | 980 | 535 | 476 | 413 | 35 | 12–30 | 2 | 305 | 1250 | SMC–00 |
Y-образные шламовые клапаны обычно используются в следующих областях:
Производство глинозема: для транспортировки щелочного шлама оксида алюминия
Горнодобывающая и перерабатывающая промышленность: для регулирования потока руды, хвостовых шламов и флотационных реагентов
Тепловые электростанции: для транспортировки золы и шлака после сгорания угля
Химическая и целлюлозно-бумажная промышленность: для перекачки густой пульпы, химических осадков и других абразивных сред
Угольные системы: для транспортировки высокоплотной, высокотемпературной золы и шлама
Благодаря своей прочной конструкции и корпусу Y-образной формы эти клапаны особенно подходят для эксплуатации в условиях агрессивных, эрозионных сред под высоким давлением и при повышенных температурах (до 425°C).
Discover our premium valve solutions and boost your efficiency. Contact
us now to find out how we can support your needs with top-quality
products and exceptional service.
0577—86938599
© Tang Gong Valve Group. All Rights Reserved.